Eine Frage haben? Benötigen Sie Hilfe?Rufen Sie uns an +48 518 075 074

Pergola Moderno – Wand – Maße und Spezifikationen

 

 

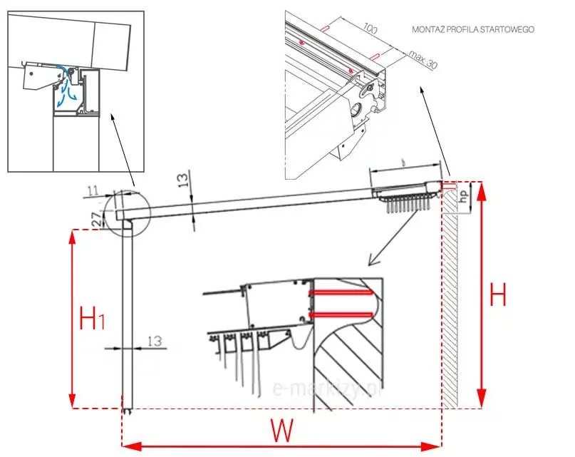
Pergola Moderno – Wand – So messen Sie

S=Pergolabreite, W=Pergolaspanne


Seitenansicht

W=Pergola-Projektion
H=Gesamthöhe (hängt von der Reichweite und dem Neigungsgrad der Pergola ab – Maß wird vom Hersteller festgelegt
H1=Höhe 230 cm (Standard, es ist möglich, kürzere oder längere Stützen zu bestellen)

Erstinstallation des Profils


Seitenansicht

W=Pergola-Projektion
H1=Höhe des Tragprofils (Standard 230cm, max. 260cm)
H=Pergolahöhe
– Spannbalken (extra kostenpflichtige Option)


Vorderansicht

S=Breite der Pergola
H=Pergolahöhe


Vorderansicht – Module

S=Gesamtbreite der Modulstruktur
S1, S2, S3=Breite der einzelnen Module


Pergola Moderno – Wand – Technische Daten

Abstand der Pergolafüße

 

Profilabschnitte:

– Führungsprofil
– Support-Profil


Materialpaket

Die Höhe des PS-Pakets hängt vom Abstand zwischen den Windschutzbalken ab. Auf Wunsch kann der Abstand zwischen den Trägern verringert werden und gleichzeitig die Höhe des Pakets reduziert werden


Dachneigung

Die Methode zur Berechnung der Dachneigung und das Verhältnis zwischen den Abständen der Führungen


Befestigungsstützen

Pergolastützen werden in der Regel direkt am Boden befestigt. Gegen Aufpreis sind Montagepads erhältlich, die an die Art der Wasserableitung aus dem Bauwerk angepasst sind. Montagepads bestehen aus unlackiertem Edelstahl.


Wasserablauf

– Vorderseite
– Untere


Modulare Pergola – Abmessungen

*Die Führung liegt immer in der Beinachse

Pergola Moderno Pergola ist in einem einzelnen Modul mit einer Breite von bis zu 500 cm erhältlich. Pergolen können in verschiedenen Konfigurationen miteinander kombiniert werden (auch asymmetrisch, z. B. eine 400 cm breite Pergola kombiniert mit einer 270 cm breiten Pergola). Wenn die Pergola verbunden ist, verfügt sie über eine gemeinsame Stütze. Jede Pergola wird über ein separat steuerbares Dach verfügen (die Möglichkeit, mit einer gemeinsamen Fernbedienung gesteuert zu werden), aber optisch wird sie ein einziges Ganzes bilden.


Pergola Moderno – Gesamtansicht


Pergola Moderno – Seitenansicht, Seitenansicht


Pergola Moderno – Draufsicht, Draufsicht


Pergola Moderno-Komponenten
Liste der Pergola-Elemente:

1. FÜHRER
2. VORDERES STÜTZPROFIL
3. Dachrinnen
4. VERLINKUNGSPROFIL
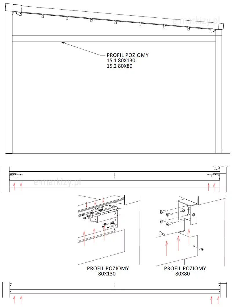
5. SEITENPROFIL 80×130
6. SEITENPROFIL 80×80

Pergola Moderno-Komponenten
Liste der Pergola-Elemente:

7. STARTPROFIL
8. OBERE ABDECKUNG
9. ANTRIEBSPROFIL
10. BLINKT
11. SYSTEMKABINE


Pergola-Stoff – Bauelemente

Pergolabalken:
vorderer Balken,
Mittelbalken,
hinterer Balken
Stoffwagen:
Vorderwagen,
mittlerer Wagen,
Endwagen


Beispiel für die Installation einer Wandpergola


Das Startprofil wird je nach Breite der Pergola an mehreren Stellen mit der Wand verschraubt.
Wir bohren bei Bedarf an beliebigen Stellen unter Einhaltung der entsprechenden Abstände.
Bitte beachten Sie, dass der Mindestverankerungsabstand des Profils auf beiden Seiten ca. 250 mm beträgt.


Das Element sollte in das Profil eingeführt und dann mit der M6x14-Schraube am Knöchel im Beinanschluss verschraubt werden.



Hängen Sie die Führung am Griff im Startprofil ein und befestigen Sie sie anschließend mit der M8x70-Schraube.
Setzen Sie die Schrauben M8x25 mit Unterlegscheiben in die Halterung ein und ziehen Sie sie mit der Mutter 8 leicht fest.


Befestigungsprofil einsetzen (die Bewegungsrichtung wird durch die roten Pfeile angezeigt) und mit der M6-Schraube von innen verschrauben.


Zakotwienie: Nasuń stopy na elementy mocujące, podnosząc je do góry aby ominąć śruby, a następnie skręć śrubami M6, do kostek umieszczonych w portach nogi.
Zamontuj dolną wylewkę wody w profilu. Zainstaluj zaślepkę nogi.
Dokręć śrubę M8X60 znajduj ącą się w uchwycie przy zaślepce rynny.


Befestigungsprofil einsetzen (die Bewegungsrichtung wird durch die roten Pfeile angezeigt) und mit der M6-Schraube von innen verschrauben.



Das Pergola-Stoffmodul ist werkseitig montiert und bereit für die Installation auf der Pergola-Struktur. Das Stoffmodul besteht aus Windschutzbalken. An jedem Balken sind Stoffstreifen befestigt. Das gesamte Modell sollte mit den Führungswagen (die werkseitig in den Pergolaführungen eingebaut sind) verbunden werden.
*Um die Installation des Stoffmoduls zu erleichtern, verwenden Sie am besten Gerüste oder Leitern, um den Stoff so nah wie möglich an den Führungswagen zu stützen.

Installieren Sie das Sack-Profil und klicken Sie darauf, um das Profil zu starten. Starten Sie den Motor und fahren Sie dann den ersten Wagen in der Führung, wobei Sie ihn nahe an der Dachrinne platzieren.

Platzieren Sie das Stoffbündel auf dem Gerüst in unmittelbarer Nähe der Schienen

Die Installation sollte mit der Anbringung des vorderen Balkens beginnen. Dann montieren Sie alle kleinen Balken auf die gleiche Weise.

Nachdem Sie das Stoffpaket ohne den hinteren Balken installiert haben, verschieben Sie die Seite der Rückseite mit der Motorbox.

Heckträger installieren.


Installieren Sie das Sack-Profil und klicken Sie darauf, um das Profil zu starten.
Starten Sie den Motor und fahren Sie dann den ersten Wagen in der Führung, wobei Sie ihn nahe an der Dachrinne platzieren.

Platzieren Sie das Stoffbündel auf dem Gerüst in unmittelbarer Nähe der Schienen

Die Installation sollte mit der Anbringung des vorderen Balkens beginnen. Dann montieren Sie alle kleinen Balken auf die gleiche Weise.

Nachdem Sie das Stoffpaket ohne den hinteren Balken installiert haben, verschieben Sie die Seite der Rückseite mit der Motorbox.

Heckträger installieren.


Montage des Seitenprofils 80×130
Montage des Seitenprofils 80×80


Moderno Balkonpergola, Pergola mit Topf, Pergola auf einem Balkon in einem Wohnblock, Pergola mit Beleuchtung, beleuchtete Pergola, Verglasung in Pergola, verglaste Pergola, Pergola Silesia, Pergola Posen, Pergola Obi, Castorama-Pergola, Pergola Moderno Terraceola, Pergola an der Wand montiert, Pergola Moderno an der Wand montiert, Terrassendachterrassenterrasse, Aluminium-Terrassenüberdachung, Pergola-Terrasse, Terrassenpergolen Preis, Terrassenpergolen Lublin, Terrassenpergola Moderno, Pergola mit Stoff, Pergola mit Seitenabdeckung, Moderno-Terrassenpergola, verschiebbares Terrassendach, verschiebbare Pergola, Biergarten-Pergola, Moderno-Terrassenpergola, Restaurant-Pergola, Restaurant-Pergola, Moderno-Terrassenpergola, Premium-Pergola, maßgeschneiderte Pergolen, Preise für Aluminium-Pergolen, Schiebetüren Terrassenüberdachung, Terrassenpergola mit beweglicher Alu-Konstruktion auf Maß, Alu-Konstruktion des Wintergartens, Segeltuchüberdachung für die Terrasse, Pergolen in Raten, Terrassenpergola in Raten, Alu-Baustoffdach, Wandmontierte Eleganz-Pergola, Biergarten-Pergola, Pergola Technische Daten der Moderno-Pergola, Pergola-Profilabschnitte, Ansicht auf der Vorderseite der Pergola, Abstand der Pergola-Füße, Technische Daten der Pergola-Moderno-Wand, Pergola-Seitenansicht, Installation des Pergola-Startprofils, Pergola-Moderno-Pergola-Module, modulare Terrassenpergola, Moderno-Wandpergola , Entwässerung der Wandpergola, Moderno Wandpergola, Materialpaket Terrassenpergola 

Zapisz do PDF

Trwa generowanie dokumentu, poczekaj chwilę

Back Zapisz do PDF
Your cart email sent successfully :)