Eine Frage haben? Benötigen Sie Hilfe?Rufen Sie uns an +48 518 075 074

Refleksol Ziiip 95 – Montageverfahren

1. Aluminiumführungen, die an einer vertikalen Oberfläche montiert sind (normalerweise am Fensterrahmen)
2. Seitlich an der Nische montierte Aluminiumführungen
3. Aluminiumführungen, die an verstellbaren Griffen am Fenster oder an der Wand montiert sind

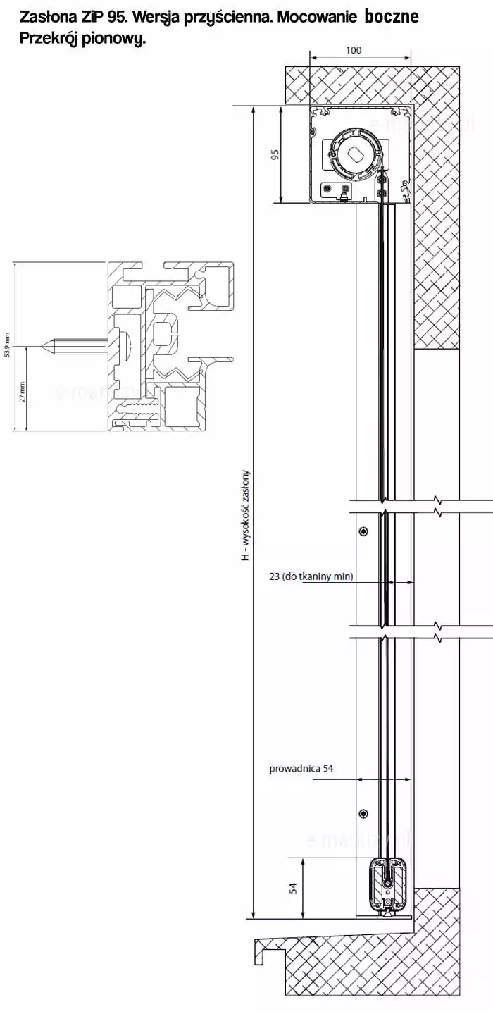
* die Kassette ist selbsttragend – wir befestigen sie nur an den Führungen. Bei Bedarf kann es auf jede Oberfläche geschraubt werden.




Reflexol 95 Ziiip Selt

| Selbsttragende Kassette
| Führungen an den Griffen
| Stoßmontage (z. B. an der Wand oder am Fensterrahmen)


Zapisz do PDF

Trwa generowanie dokumentu, poczekaj chwilę

Back Zapisz do PDF
Your cart email sent successfully :)