Eine Frage haben? Benötigen Sie Hilfe?Rufen Sie uns an +48 518 075 074

Pergola Luxury – freistehend – Maße und technische Daten

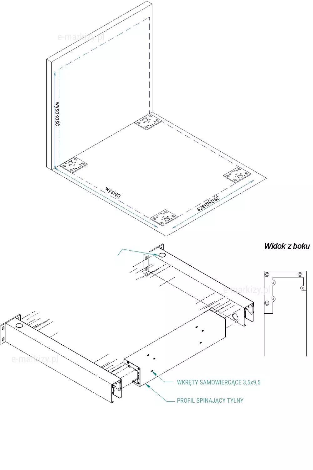
Pergola Luxury – Freistehend – So messen Sie

 

S=Pergolabreite, W=Pergolaspanne


Seitenansicht mit entfaltetem Stoff (mit Rinnenprofil)

W=Pergola-Projektion
H1=Pergola-Stützhöhe (Standard 270 cm)


Vorderansicht

S=Breite der Pergola
H=Höhe der Pergolastütze +2cm


Vorderansicht – Module

S=Gesamtbreite der Modulstruktur
S1, S2, S3=Breite der einzelnen Module


Pergola Luxury – Freistehend – Technische Daten

Struktur aus stranggepresstem Aluminium. Elektromotorsteuerung serienmäßig. Driplux-Dachstoff serienmäßig (gegen Aufpreis gegen einen anderen Stoff austauschbar). Möglichkeit der Pulverbeschichtung in jeder RAL-Farbe. Pergola Flat (Luxury) ist in einer wandmontierten und freistehenden Version erhältlich. Möglichkeit der modularen Verbindung. Das Produkt ist windbeständig bis 120 km/h.
Möglichkeit zur Auswahl zusätzlicher Ausstattung:
– Beleuchtung
– Systemüberdachung zum Schutz des Stoffes
– Verglasung
– Sichtschutzjalousien
– Heizkörper
– Wind-, Sonnen- und Regensensoren

Abstand der Pergolafüße


Wasserablauf

– Vorderseite
– Untere


Rinnenabschnitt – Wasserabfluss

Supportprofil – Abschnitt


Materialpaket

Die Höhe des PS-Pakets hängt vom Abstand zwischen den Windschutzbalken ab. Auf Wunsch kann der Abstand zwischen den Trägern verringert werden und gleichzeitig die Höhe des Pakets reduziert werden


Modulare Pergola – Abmessungen

1 Modul: Breite 201–450 cm
2 Module: Breite 451–900 cm
3 Module: Breite 901-1300 cm

*Die Führung liegt immer in der Beinachse


Befestigungsstützen

Pergolastützen werden in der Regel direkt am Boden befestigt. Gegen Aufpreis sind Montagepads erhältlich, die an die Art der Wasserableitung aus dem Bauwerk angepasst sind.


Pergola Luxury – Gesamtansicht


Pergola Luxury – Seitenansicht, Seitenansicht


Pergol Flat – Draufsicht, Draufsicht


Pergola-Luxury – komponenten
Liste der Pergola-Elemente:

1. FÜHRER
2. VORDERES UND HINTERES STÜTZPROFIL
3. SEITENTEIL MIT RINNE
4. FRONTVERBINDUNGSPROFIL
5. HINTERES VERBINDUNGSPROFIL

Pergola-Luxury – komponenten
Liste der Pergola-Elemente:

6. ANTRIEBSPROFIL
7. BLINKT
TNA.201.01 (Innenschaft)
TNA.202.01 (äußerer Schaft)
8. SYSTEMKABINE
9. VERBINDUNGSPROFIL
10. VERLINKUNGSPROFIL


Pergola-Stoff – Bauelemente

Pergolabalken:
vorderer Balken,
Mittelbalken,
hinterer Balken
Stoffwagen:
Vorderwagen,
mittlerer Wagen,
Endwagen


Schema zur Markierung von Stützprofilen



Beispielmontage einer freistehenden Pergola

Das hintere Verbindungsprofil sollte zwischen die Trägerprofile eingefügt und mit 3,5×9,5 Bohrschrauben verbunden werden.
∗∗ Das hintere Befestigungsprofil enthält einen vorbereiteten Ausschnitt zur Montage der Motorbox.



Die resultierende Verbindung der Führung und des vorderen Stützprofils sollte in Richtung der hinteren Tür verschoben werden.
Die Führung sollte mit der Hecktür verbunden werden, indem der Führungsgriff mit M6x6-Schrauben in das hintere Stützprofil eingeführt wird


Demontieren Sie vor der Montage des Verbindungsprofils die Endkappe des Profils.
Der Rest des Bauteils wird durch die Montage des Verbindungsprofilwürfels über die zuvor vorbereiteten Löcher mit dem vorderen Trägerprofil verbunden.
Im Trägerprofil mit M6x25-Schrauben und 3,5×9,5-Bohrschrauben


Das Befestigungsprofil beinhaltet die Motorbox-Baugruppe.
Setzen Sie das Befestigungsprofil ein (die Bewegungsrichtung wird durch die Pfeile angezeigt) und verschrauben Sie es mit der M6x16-Schraube


Schieben Sie die Füße über die Befestigungselemente, heben Sie sie an, um den Schrauben auszuweichen, und schrauben Sie sie dann mit den M6-Schrauben an den Knöcheln fest, die in den Beinöffnungen platziert sind.
Installieren Sie den unteren Wasserauslauf im Profil und installieren Sie die Beinkappe.


Das 80×80 Klemmprofil sollte in die Halterung eingelegt werden (die Bewegungsrichtung wird durch die Pfeile angezeigt) und mit einer Schraube M6x2St. verschraubt.


Das Seitenteil mit der Dachrinne wird auf der rechten oder linken Seite der Pergola montiert. Wird zum Ablassen von Wasser verwendet. Die Montageseite legen wir je nach Bedarf bei der Bestellung fest. Das Wasser wird in die Rinne abgeleitet und fließt dann an der vorderen Stütze herunter.
Das Seitenteil mit der Dachrinne hat auch eine optische Funktion. Es deckt den Raum zwischen den Balken ab. Bei Bedarf können wir ein solches Paneel auch auf der gegenüberliegenden Seite der Pergola installieren (das Wasser läuft dann nicht ab).
Das Seitenteil mit der Dachrinne sollte auf der Entwässerungsseite zwischen die Tragprofile eingelegt werden.
A – Pergola-Dachrinne, B – Seitenwand der Dachrinne



Das Pergola-Stoffmodul ist werkseitig montiert und bereit für die Installation auf der Pergola-Struktur. Das Stoffmodul besteht aus Windschutzbalken. An jedem Balken sind Stoffstreifen befestigt. Das gesamte Modell sollte mit den Führungswagen verbunden werden (die werkseitig in den Führungen der Pergola installiert sind).
*Um die Installation des Stoffmoduls zu erleichtern, verwenden Sie am besten Gerüste oder Leitern, um den Stoff so nah wie möglich an den Führungswagen zu stützen.


Der Endteil des Stoffmoduls ist der hintere Balken, an dem der letzte Stoffstreifen (die sogenannte Tasche) befestigt wird (Abb. A1). Die Tasche sollte am zuvor installierten Profil befestigt werden (Abb. A2).

Platzieren Sie das Stoffbündel in unmittelbarer Nähe der Führungen auf dem Gerüst.
Die Montage sollte mit der Befestigung des Vorderträgers beginnen.


Optional kann die Pergola mit einem Schutzdach ausgestattet werden. Es schützt den Stoff im vollständig aufgerollten Zustand vor Schmutz. Das Vordach besteht aus einzelnen Paneelen, die sukzessive aneinandergefügt werden.

Montieren Sie die Montagehalterung mit Butylband und selbstbohrenden Schrauben am hinteren Verstrebungsprofil.
Montage der seitlichen Einfassung des Systemdaches
– Butylband aufkleben
– Bringen Sie die Probe an der Seitenwand der Führung an und befestigen Sie sie mit selbstbohrenden Schrauben.
– Wiederholen Sie den Vorgang an der gegenüberliegenden Führungsschiene

Herstellung des letzten Paneels des Systemdachs
Schieben Sie die zugeschnittene Platte unter die seitliche Einfassung des Vordachs und befestigen Sie sie mit einer selbstbohrenden Schraube

Montage des Frontwinkels für das Systemdach
Abdeckwinkel montieren:
– Bringen Sie die Winkelstange mit den Griffen an der Kante des Dachbalkens an
– Mit einem selbstbohrenden Bohrer mit einer EPDM-Unterlegscheibe an den Dachbalken schrauben



Pergola Luxury – freistehend – Technische Daten – regensichere Pergola, regensichere Pergola, regensicheres Terrassendach, Pergola-Entwässerung, versteckte Pergola-Dachrinnen, Pergola-Entwässerungsrinnen, Regenwasserentwässerung, Pergolen mit Dachrinnen, Terrasse Überdachung mit Dachrinnen, Pergola-Dachrinnenabschnitt, Pergola für Terrassenrinnen, Pergola für die Entwässerung der Terrasse, Terrassenpergola, verschiebbares Terrassendach, Terrassenpergola mit beweglicher Abdeckung, Terrassenüberdachung aus PVC, Terrassendach aus Polycarbonat, maßgeschneiderte Aluminiumkonstruktion, Aluminiumkonstruktion von der Wintergarten, Online-Shop für Aluminium-Pergola, Aluminium-Pergola Allegro, Aluminium-Pergola, Terrassen-Pergolen, Pergola-Überdachung, Terrassenüberdachung aus Segeltuch, Pergola in Raten, Garten-Pergola, Pergola für den Balkon, Pergola für die Terrasse, Preis für Pergola-Markise, Pergola-Obi, Castorama Aluminium Pergola, Aluminium Pergola Preis, Pergola Soft, Pergola Dekor, Pergola, Aluminium Pergola, Pergola für die Terrasse, moderne Pergola, Gartenpergola, Terrassenpergola, Terrassenpergola, Terrassenüberdachung, Pergola Flat (Luxus) freistehend, freistehend Stehende Terrassenpergola, tragbare Gartenpergola, gewellte Stoffpergola, freistehende Terrassenpergola, Terrassenpergola, Pergola mit zwei Armen, Stoffdachpergola, Sonnendachpergola, Restaurantpergola, maßgeschneiderte Terrassenpergola, moderne Pergola, Balkonpergola, Terrassenpergola, Pergola für den Garten, Eckpergola, Eckpergolen, Pergolen im Garten, maßgeschneiderte Pergolen, mobile Pergola, bewegliche Pergola für die Terrasse, Pergola mit zwei Armen, Aluminium-Pergola, Aluminium-Pergolen, Aluminium-Pergolen, Aluminium-Terrassendach mit beweglichem Dach , automatische Terrassenüberdachung, elektrische Terrassenüberdachung, moderne Pergolen, moderne Terrassenpergolen, moderne Terrassenüberdachung, moderne Terrassenüberdachung, zu öffnende Terrassenüberdachung, Aluminium-Pergola, Aluminium-Pergola, automatische Pergola, elektrische Pergola, Lamellen-Pergola, Stoff-Pergola, Pergola für die Terrasse , Pergola auf der Terrasse, Pergola über der Terrasse, Sonnenpergola, Pergola an der Terrasse, verschiebbare Pergola, bewegliche Pergola, klappbare Pergola, Terrassenpergola, Aluminium-Terrassenpergola, Preis für Terrassenpergola, freistehende Terrassenpergola, Terrassenpergola mit beweglichem Überdachung, gerollte Terrassenpergola, Stoffpergola, Pergola mit ausziehbarem Dach, Pergola mit ausziehbarem Dach, Pergola mit beweglichem Dach, Pergola mit Dach, Pergola mit Vorhängen, Pergoladach, Pergola mit Terrassendach, Pergola mit ausziehbarem Dach aus Stoff, Aluminiumpergolen Hersteller, automatische Pergolen, elektrische Pergolen, Lamellenpergolen, Pergolen aus Stoff, Pergolen für die Terrasse Warschau, moderne Pergolen, Faltpergolen, Terrassenpergolen aus Aluminium, Preise für Terrassenpergolen, Stoffpergolen, Pergolen mit Terrassenüberdachung, aufgerollte Pergolen, Hersteller von Terrassenüberdachungen, klappbar Terrassenüberdachung, verschiebbare Terrassenüberdachung, bewegliche Terrassenüberdachung, bewegliche Dachterrasse, klappbare Terrassenüberdachung, Terrassenüberdachungssystem, überdachte Holzterrasse, Pergola-Terrasse, Terrasse mit Pergola, Terrasse mit Dach, Terrassenüberdachung, Terrassen-Rollüberdachung, Terrassen-Pergolen, Terrassenüberdachung, Terrassenbau, Terrassenbau, Terrassenüberdachung, Aluminiumüberdachung, Überdachung auf der Terrasse, Terrassenüberdachung, Gartenüberdachung, Pergolaüberdachung, Terrassenüberdachung, Terrassenüberdachung, verschiebbare Terrassenüberdachung, Terrassenüberdachung, Terrassenüberdachung, Terrassenüberdachung, Gartenüberdachung, Pergolaüberdachung , Sonnenüberdachung, Terrassenüberdachung, Terrassenüberdachung, Terrassenüberdachung Aluminium-Terrassendach, Terrassendach automatische Terrassendach-Preisliste, Terrassendach-Preis, elektrisches Terrassendach, modernes Terrassendach, Pergola-Terrassendach, Terrassendach-Design, verschiebbares Terrassendach, verschiebbare Terrasse Dach, bewegliches Terrassendach, bewegliches Terrassendach, bewegliche Lamellen, Überdachung, klappbares Terrassendach, Terrassendach mit Sonnenmarkise, aufrollbares Terrassendach, Terrassendach-Jalousien, überdachte Terrasse, aufrollbares Terrassendach, aufrollbares Terrassendach, Licht Pergola

Zapisz do PDF

Trwa generowanie dokumentu, poczekaj chwilę

Back Zapisz do PDF
Your cart email sent successfully :)